top of page


Barcelona 2025. Completed project.



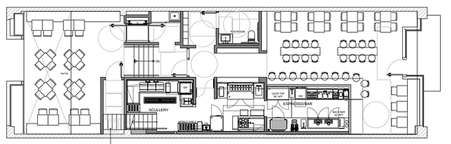
Development and design of hospitality environments, from spatial concept to built interior. Renovation planning, layout strategies and the integration of materials, lighting and custom elements shape the atmosphere and functionality of each space.





Menorca 2026. Project in progress.
Analysis and concept development translating ideas into spatial narratives through materials, layout and visual language. From context and program to atmosphere and detail, projects evolve into coherent environments through interiors, furniture and custom elements.


Barcelona 2025. Completed project.

Atmospheres shaped through materials, light and rhythm, creating distinct identities.












FF&E strategies for interior projects, developed in dialogue with architecture, materials and the overall spatial concept.
US 2024. Project in progress.






Bespoke furniture and custom objects designed for architects and interior projects, responding to specific spatial and material contexts.
US 2024. Project in progress.


Renovation planning, spatial optimisation and material coherence shaping the transformation of existing environments.


Menorca 2026. Project in progress.

Creative direction for exhibitions, installations and events. Temporary environments and visual narratives that communicate ideas, products or cultural content.



bottom of page
